Как исправить диагональное подключение радиатора. Какие ошибки допускают при диагональном подключении радиатора отопления
- Как исправить диагональное подключение радиатора. Какие ошибки допускают при диагональном подключении радиатора отопления
- Диагональное подключение радиаторов подача снизу. О способах подключения батарей
- Нижнее подключение биметаллических радиаторов. Подключение биметаллических радиаторов отопления. Сравнительная характеристика с другими видами батарей. Схемы подключения и монтаж
- Схемы подключения радиаторов отопления. Схемы диагонального подключения радиаторов отопления
- Неправильное подключение радиаторов отопления. Чем грозит неправильный монтаж батарей отопления
Как исправить диагональное подключение радиатора. Какие ошибки допускают при диагональном подключении радиатора отопления
На чтение 2 мин.
Диагональное подключение радиатора к отопительной системе считается самым эффективным в частном доме. Так как благодаря именно такому подключению происходит естественная циркуляция теплоносителя в радиаторе под действием физических законов. Теплоноситель равномерно распределяется по всей площади радиатора, отдавая тепло воздуху. Чтобы отопительная система работала без перебоев необходимо качественно произвести подключение радиаторов к ней.

Недоработки при диагональном подключении радиаторов отопления
Ошибки при подключении батарей к системе отопления дома может совершить не только новичок в этом деле. Зачастую и мастера «попадаются», тем самым значительно снижая энергоэффенктивность всей системы:
- Не произвелась точная стыковка оси оконного проема с осью батареи;
- Неправильно выверено расстояние от радиатора до подоконника, пола или стены.
При расположении радиатора, необходимо иметь в виду, что его нивелирование влияет на теплоотдачу:
- Отсутствие подоконника увеличивает показатели до 20%;
- Если уменьшить расстояние от подоконника до радиатора на 5 см, то теплоэффективность снизится на 7%;
- Если же батарея будет находится слишком близко к полу, теплоотдача также уменьшится на 7%.
Чтобы увеличить теплоотдачу от радиатора отопления можно к стене за ним установить какой-либо отражающий экран. Например, это может быть ДВП со специальной фольгой. В таком случае теплоотдача возрастет до 20%.

Что нужно знать о диагональном подключении
Информацию, которую необходимо принять к сведению:
- Диагональная система подключения обычно используется при двухтрубной разводке;
- В идеале, подающий контур подсоединяется к верхнему патрубку, когда же обратный к нижнему. Если же присутствует принудительная циркуляция теплоносителя, то возможна и подключения наоборот. Но от этого энергоэффективность снижается;
- В многоквартирных домах диагональное подключение обычно не используют. Его советуют приметь только если насчитывает в радиаторе 12 секций и более, так как при боковом подключении боковые секции всегда будут немного холоднее центральных.

При производстве радиаторов отопления за эталон теплоотдачи всегда берут значения при боковом подключении. Поэтому при расчете диагонального подключения необходимо использовать поправочный коэффициент 1,2.
Диагональное подключение радиаторов подача снизу. О способах подключения батарей
Начнем с того, что схема подключения бывает:
- односторонней;
- перекрестной;
- нижней.

Схемы подключения радиаторов отопления
По одностороннему варианту подключение производится, как правило, в городских квартирах, где используется центральное отопление. Здесь трубы подсоединяются лишь с одной стороны батареи. Преимущество схемы в том, что система может работать с максимальной номинальной мощностью, однако то, насколько эффективна теплоотдача, зависит от кол-ва секций батареи. Вода в данном случае не может доходить до удаленных от места подсоединения участков, что негативно влияет на эффективности всей отопительной системы. Данный эффект особенно заметен при использовании батареи, состоящей из 15-ти секций, потому при подключении многосекционных радиаторов предпочтение лучше отдавать другой схеме.

Адаптер для нижнего одностороннего подключения радиатора
В последние годы все большую популярность обретают биметаллические радиаторы, их можно подключать по диагональной (ее также называют перекрестной) схеме. Суть данной схемы в том, что подводка подсоединяется сверху, а отводка – снизу, но с другой стороны. При таком монтаже жидкость более равномерно распределяется по батарее, а значит, минимизируются потери ее мощности.

Диагональное подключение радиаторов отопления
На заметку! При использовании диагональной схемы необходимо учитывать то, как располагаются отводящая/подводящая трубы. Ведь если подвод сделать снизу, а отвод – сверху, то радиатор может потерять свыше 50% своей мощности.

Диагональная схема подключения радиаторов отопления при двухтрубной и однотрубной системе
Порой описанные выше схемы по тем или иными причинам не используются в помещении. Тогда остается только нижнее подключение , при котором образуется сквозной проход теплоносителя; очевидно, что до верхних секций радиатора жидкость в таком случае не доходит, из-за чего теплоотдача может снизиться на 15%. Тем не менее, данную схему нередко применяют в частных домах с индивидуальным отоплением. А теплоотдачу можно восполнить посредством распределительных трубок.

Нижнее подключение биметаллических радиаторов. Подключение биметаллических радиаторов отопления. Сравнительная характеристика с другими видами батарей. Схемы подключения и монтаж
Схема подключения биметаллических радиаторов отопления существенных отличий от других типов отопительных приборов не имеет, поэтому речь пойдет об общих правилах монтажа батарей. При этом мы отметим некоторые нюансы и особенности, и расскажем, как подключить биметаллический радиатор отопления.

Биметаллический радиатор с нижним подключением в интерьере комнаты.
Биметаллические радиаторы отопления
Сравнительная характеристика с другими видами батарей

На фото – высокий узкий прибор.
Для начала необходимо понять, какие радиаторы отопления бывают, и чем они отличаются друг от друга.
Перечислим основные виды:
- Чугунные батареи – один из самых распространенных типов, который встречается в большинстве квартир советской застройки. Представляет собой систему соединенных чугунных секций с достаточно толстыми стенками и большой массой. Отличается высокой прочностью и долговечностью, однако имеет невысокий КПД и теплоотдачу, а также можно отметить большую тепловую инерцию;
- Стальные трубчатые регистры – это система труб достаточно большого диаметра, или одна труба в виде S-образного изгиба (пример – полотенцесушитель). Данный тип приборов обычно устанавливают в больших помещениях – концертных залах, кинотеатрах, спортивных комплексах, супермаркетах. Отличаются высокой мощностью и большим объемом теплоносителя;
- Стальные панели отопления . Представляют собой сваренные профилированные пластины из стали, внутри которых имеются каналы для циркуляции теплоносителя. Имеют достаточно низкую стойкость к гидроударам и невысокую прочность, подвержены коррозии и не очень надежны;
- Алюминиевые радиаторы – более современный тип батарей, который отличается повышенной теплоотдачей и КПД, невысоким объемом теплоносителя и низкой массой прибора. За счет низкой тепловой инерции хорошо поддаются автоматической и ручной терморегулировке. Требовательны к качеству теплоносителя и его кислотности, имеют среднюю прочность и срок службы;
- Медные батареи – представляют собой систему трубок с пластинчатым оребрением. Отличаются самой высокой теплоотдачей и КПД, высокой прочностью и стойкостью к гидроударам, отсутствием коррозии и длительным сроком службы. Единственный недостаток медных агрегатов – высокая цена;
- Биметаллические радиаторы внешне и по конструкции напоминают алюминиевые приборы с той разницей, что внутренние стенки каналов выполнены из стали или меди. Таким образом удается повысить эффективность и теплоотдачу батареи, но сохранить ее прочность и долговечность.
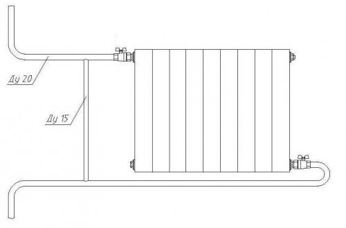
Схемы подключения радиаторов отопления. Схемы диагонального подключения радиаторов отопления
Самой эффективной и правильной считается двухтрубная схема, когда дело касается диагонального способа подключения. Подающую ветку лучше подводить к верхнему коллектору с одной стороны, а обратку – к нижнему коллектору с другой стороны радиатора. Двухтрубная схема отлично работает в самотечной и принудительной системе
Однако важно правильно расположить подающую и отводящую линию
Если циркуляция принудительная, две трубы можно располагать снизу радиатора
Так как при принудительной циркуляции теплоноситель подается под давлением, подающую и обратную линию можно расположить по полу ниже батареи. Схема выигрывает в эстетичности, так как на стене видны только подходящие к коллектору патрубки.
Если циркуляция естественная, подающую трубу располагают выше приборов обогрева
При естественной циркуляции двухтрубная схема выглядит не эстетично, так как выше радиаторов по стене пролегает подающая ветка. От нее идут отводные патрубки к верхним коллекторам каждой батареи. Обратная линия пролегает по полу. По-прежнему она остается менее заметной.
Однотрубная схема предполагает прокладку по полу только одной трубы, от которой патрубки подводят к нижнему и противоположному верхнему коллектору
По эффективности однотрубная схема проигрывает во всем, но есть один плюс. При нижней разводке диагональный способ подключения позволяет увеличить теплообмен на 15%, чем у других систем, например, «ленинградки», где оба подводящих патрубка от одной трубы подключены только к пробкам нижних противоположно расположенных коллекторов.
Неправильное подключение радиаторов отопления. Чем грозит неправильный монтаж батарей отопления
На чтение 2 мин.
Неопытные строители в ряде случаев допускают ошибки при монтаже батарей отопления. Главный грубый просчет, совершаемый при выполнении этой работы, заключается в неправильном выборе направления потока носителя тепла в трубах. Зачастую трубу, по которой подается теплоноситель, подсоединяют к нижнему штуцеру теплообменного узла, тогда как обратную трубу подсоединяют к верхнему штуцеру. Из-за этого возникает целый ряд пагубных последствий, в том числе:
- нарушение процессов циркуляции теплоносителя, что ведет к снижению эффективности функционирования отопительной системы;
- нарушение хода отведения носителя тепла из радиатора, в результате чего одна его половина нагревается, а другая – нет;
- появление вероятности разрушения верхней части батареи;
- снижение коэффициента полезного действия, невозможность полноценной теплоотдачи в связи с недостаточной заполненностью батареи теплоносителем.
В неправильно присоединенном радиаторе носитель тепла проникает внутрь сквозь нижний патрубок. В этом случае он не может обеспечить прогревание всех секций, чем и объясняется значительное снижение эффективности отопительной системы в сравнении с грамотной установкой батарей.

При правильном монтаже радиатора нагретый теплоноситель после прохождения через регулятор попадает его в верхнюю часть, а затем благодаря давлению – и в нижнюю часть. В результате заполняется весь полезный объем секций, что обеспечивает максимальную теплоотдачу отопительной системы.



Правильная установка отопительных батарей гарантирует поступление нагретого теплоносителя сверху и обеспечивает его прохождение по верхнему коллектору. Качественный нагрев достигается за счет диагонального подсоединения батарей.

Чтобы исправить ошибки, допущенные при монтаже радиаторов отопления, нужно выполнить следующие действия:
- отсоединить подающие трубы от штуцеров;
- произвести корректировку схемы отопительной системы таким образом, чтобы подача теплоносителя осуществлялась через верхнюю трубу, а его обратное перемещение – через нижнюю;
- подсоединить элементы к теплообменнику;
- включить подачу и проверить работу системы.
Неэффективность функционирования отопительной батареи может быть обусловлена многими факторами. При наличии такой проблемы нужно сначала понять, чем она вызвана, а затем принять соответствующие меры.


