Как подключать радиаторы отопления. О способах подключения батарей
Как подключать радиаторы отопления. О способах подключения батарей
Начнем с того, что схема подключения бывает:
- односторонней;
- перекрестной;
- нижней.

Схемы подключения радиаторов отопления
По одностороннему варианту подключение производится, как правило, в городских квартирах, где используется центральное отопление. Здесь трубы подсоединяются лишь с одной стороны батареи. Преимущество схемы в том, что система может работать с максимальной номинальной мощностью, однако то, насколько эффективна теплоотдача, зависит от кол-ва секций батареи. Вода в данном случае не может доходить до удаленных от места подсоединения участков, что негативно влияет на эффективности всей отопительной системы. Данный эффект особенно заметен при использовании батареи, состоящей из 15-ти секций, потому при подключении многосекционных радиаторов предпочтение лучше отдавать другой схеме.

Адаптер для нижнего одностороннего подключения радиатора
В последние годы все большую популярность обретают биметаллические радиаторы, их можно подключать по диагональной (ее также называют перекрестной) схеме. Суть данной схемы в том, что подводка подсоединяется сверху, а отводка – снизу, но с другой стороны. При таком монтаже жидкость более равномерно распределяется по батарее, а значит, минимизируются потери ее мощности.

Диагональное подключение радиаторов отопления
На заметку! При использовании диагональной схемы необходимо учитывать то, как располагаются отводящая/подводящая трубы. Ведь если подвод сделать снизу, а отвод – сверху, то радиатор может потерять свыше 50% своей мощности.

Диагональная схема подключения радиаторов отопления при двухтрубной и однотрубной системе
Порой описанные выше схемы по тем или иными причинам не используются в помещении. Тогда остается только нижнее подключение , при котором образуется сквозной проход теплоносителя; очевидно, что до верхних секций радиатора жидкость в таком случае не доходит, из-за чего теплоотдача может снизиться на 15%. Тем не менее, данную схему нередко применяют в частных домах с индивидуальным отоплением. А теплоотдачу можно восполнить посредством распределительных трубок.

Боковое подключение радиаторов отопления. Однотрубная система
Эту систему монтируют в многоэтажных домах. Но нередко она встречается в старых одноэтажных домах. В коттеджах современно постройки ее, как правило, не используют.

Достаточно эффективна при обогреве небольшого дома или дачи площадью до 50 м2. Но при устройстве однотрубной системы отопления в домах большой площади все плюсы системы теряются.
- Основная конструктивная особенность однотрубной разводки – все отопительные приборы подсоединены последовательно к одной трубе.
- Варианты подключения: параллельно трубе и последовательно.
- Вторая схема морально устарела и неэффективна – при протечке радиатора приходится полностью отключать отопления, невозможно отрегулировать температуру одной отдельно взятой батареи. Поэтому ее не следует устанавливать в новых домах.

Достоинства и недостатки
Эта система отопления имеет немало достоинств при использовании в небольших домах:
- Она немного конструктивно проще и поэтому дешевле двухтрубной.
- Современные термовентили позволяют регулировать температуру каждого радиатора в отдельности (при параллельном подключении). Это позволяет не наращивать длину радиаторов в каждом последующем помещении, как это делалось раньше.
- Установка кранов позволяет отключать каждую батарею.
- Однотрубная система отопления быстрее прогревается, чем двухтрубная.
- Одна труба выглядит красивее, чем две.

Недостатки:
- Падение температуры на каждом последующем радиаторе значительное. В большом доме терморегуляторов недостаточно для балансировки системы. Поэтому для равномерного прогрева всех комнат придется увеличивать количество секций батарей – на 10% в каждой следующей комнате.
- Считается, что однотрубная разводка дешевле, чем двухтрубная. Но это верно для небольших домов и дач. В больших – стоимость радиаторов превышает экономию на трубах.
- При наращивании длины радиаторов могут возникнуть сложности с их размещением.
- Однотрубную систему невозможно адаптировать для обогрева двухэтажного дома.

Как правильно подключить радиатор отопления при однотрубной системе. Как правильно подключить радиаторы
От правильного подключения радиаторов зависит не только надежность их работы, но и эффективность отопления в целом. Например, при нижнем подключении радиатора он будет прогреваться несколько хуже, чем при диагональном.
Особенности установки радиатора
Подключение радиаторов отопления при однотрубной системе отопления может выполняться 2 способами:
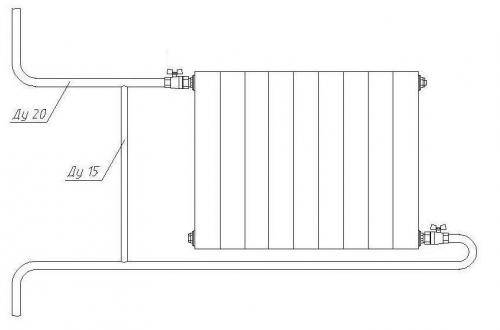
- без использования байпаса (проточная схема). В таком случае гарантирована максимальная теплоотдача радиатора, но работу системы гибкой и надежной назвать нельзя. При такой схеме выход из строя даже одной батареи потребует отключение всей системы отопления, отключить только один радиатор не получится;
- установка радиатора с байпасом. Это несколько снижает приток теплоносителя в него в результате чего теплоотдача отопительного прибора уменьшается на величину до 10-15%, но критичными такие потери назвать никак нельзя (тем более, что при расчете всегда закладывается запас, те же 10-15%). Зато хозяин жилья получит возможность не только отключить любую батарею в любой момент, но и регулировать температуру в ней.

На фото — байпас
Обратите внимание!
Чтобы не возникло проблем с циркуляцией теплоносителя в системе отопления. диаметр байпаса нужно подбирать на 1 шаг меньше, чем диаметр подводящей трубы.
Также при установке радиаторов понадобится:
- пара шаровых кранов, устанавливаются по обе стороны от радиатора и используются для мгновенного отключения подачи воды в него;
- в принципе, инструкция этого не требует, но желательно на входе в батарею установить простенький автоматический терморегулятор. Пара сотен рублей на бюджете не скажутся, а вот возможность регулировать теплоотдачу отопителя дорогого стоит;
- фитинги для подключения байпаса к трубопроводу. Желательно обойтись без сварки, а использовать любой другой тип разъемного соединения, например, американку;
- также при установке крайне необходимо кран Маевского, часто возникают ситуации, когда один участок батареи вдруг становится прохладным, виной всему – воздушные пробки. Кран Маевского позволяет вручную спускать воздух из радиатора.

Пример правильного подключения
Обратите внимание!
На участке трубопровода под батареей можно установить шаровый кран для того, чтобы циркуляция теплоносителя осуществлялась только через радиатор отопления (регулируемый байпас).
При отключении батареи он открывается.
Как правильно подключить радиатор
Теплоотдача отопителя во много зависит от того, как именно к нему подключены подводящая и отводящая трубы. Разница между разными способами подключения может составлять до 20-25%.
