Радиаторы отопления для дома. Какие бывают отопительные батареи
Радиаторы отопления для дома. Какие бывают отопительные батареи
Чтобы наверняка знать, как выбрать радиатор отопления, нужно разбираться в разновидностях. Они отличаются по конструкции.
Секционные батареи включают в себя несколько элементов, которые соединены герметичными прокладками и ниппелями с резьбой. Благодаря такой компоновке можно собрать радиатор любых габаритов и мощностей. Потому батареи из секций можно легко составить для комнаты большого и малого метража.
Такие радиаторы производятся с помощью сварки, не разбираются и считаются прочнее других моделей. Они доступнее по цене для большинства потребителей со средними доходами.

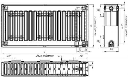
У панельных радиаторов цельнометаллическая структура и прямоугольная форма. Сконструированы из пары стальных листов с проштампованными каналами для движения теплоносителя. Соединение между ними — сплошная сварка. Эти батареи доступны по цене, но усовершенствованию не подлежат, менять их можно только целиком. Среди плюсов: легкость и простота обслуживания, аккуратный дизайн, компактная форма.

Пластинчатые батареи из трубок криволинейной или прямой формы. По ним струится разогретая вода. Чтобы теплообмен происходил быстрее, к трубкам привариваются пластины. За счет этого увеличивается площадь, излучающая тепло в помещение. Такие радиаторы надежны из-за отсутствия лишних контактов.
Чтобы наверняка знать, как выбрать радиатор отопления, нужно разбираться в разновидностях. Они отличаются по конструкции.
Секционные батареи
Секционные батареи включают в себя несколько элементов, которые соединены герметичными прокладками и ниппелями с резьбой. Благодаря такой компоновке можно собрать радиатор любых габаритов и мощностей. Потому батареи из секций можно легко составить для комнаты большого и малого метража.
Такие радиаторы производятся с помощью сварки, не разбираются и считаются прочнее других моделей. Они доступнее по цене для большинства потребителей со средними доходами.
Панельные радиаторы
Панельные радиаторы имеют цельнометаллическую структуру и прямоугольную форму. Сконструированы из пары стальных листов с проштампованными каналами для движения теплоносителя. Соединение между ними — сплошная сварка. Эти батареи доступны по цене, но усовершенствованию не подлежат, менять их можно только целиком.
Среди плюсов: легкость и простота обслуживания, аккуратный дизайн, компактная форма.
Пластинчатые батареи
Пластинчатые батареи из трубок криволинейной или прямой формы. По ним струится разогретая вода. Чтобы теплообмен происходил быстрее, к трубкам привариваются пластины. За счет этого увеличивается площадь, излучающая тепло в помещение.
Такие радиаторы надежны из-за отсутствия лишних контактов.


Радиатор отопления биметаллический. Какие бывают размеры биметаллических радиаторов отопления
У биметаллических устройств есть ещё одно важное преимущество – универсальность. Они эксплуатируются и в загородных коттеджах, и в городских квартирах.
Чаще всего батареи монтируют под окном, чтобы создать тепловой барьер для холодного воздуха. Поэтому важно, чтобы батарея вписывалась по своим габаритам в размеры ниши и обеспечивала необходимую теплоотдачу.
Чтобы определить, какие параметры батареи необходимы, надо знать размеры одной секции. Её высоту принято считать от центра входного до центра выходного коллектора. В зависимости от модели длина каналов может быть:
- 200 мм;
- 350 мм;
- 500 мм.
К этим показателям нужно прибавить ещё 8 см (оболочка радиатора). В итоге получим размеры: 280, 430 и 580 мм. Определяя габариты биметаллического радиатора, важно знать, что его КПД во многом зависит от циркуляции воздуха. Обеспечить максимальную теплоотдачу устройства можно тогда, когда расстояние от пола до нижней части батареи будет не менее 12 см, а от верха до подоконника – не менее 10 см.
Толщина батареи из биметалла составляет 80–120 мм. Стандартная ширина одной секции – 80 мм. Зная эти показатели, можно определить их количество. В условиях Украины необходимо, чтобы 1 кВт тепловой энергии предназначался для обогрева 1 кв. метра площади.
Производители обычно указывают мощность 1 секции батареи. Количество секций определяют по формуле:
N = Sх100/Q,
Где: Q – мощность 1 секции,
S – площадь помещения,
N – количество элементов батареи.
Например, если секция имеет высоту 500 мм и ширину 80 мм, а её мощность равна 180 кВт, то для обогрева комнаты в 20 кв. метров необходимо 11 секций, а ширина радиатора составит 88 см.
Радиаторы отопления стальные. Плюсы и минусы стальных радиаторов отопления
На смену громоздким и нескладным чугунным радиаторам пришло новое поколение элегантных и легких стальных радиаторов. Как понятно из названия, выполненные такие радиаторы из стали и могут быть трубчатыми и панельными. Панельные радиаторы самые распространенные и могут состоять из различного количества секций. Трубчатые радиаторы представляют собой конструкцию из стальных труб, по которым проходит горячая вода. Такие радиаторы бывают абсолютно разного и оригинального дизайна.
Основными производителями стальных радиаторов выступают страны Европы: Германия, Италия, Чехия и Франция. При их производстве используют низкоуглеродную сталь с покрытием фосфатами, порошковой эмалью и термической обработкой. Панельные радиаторы производятся разных форм и размеров, что позволяет удовлетворить потребности большинства потребителей. Соотношение цены и качества стальных радиаторов является максимально выгодной и доступной.
Достоинства:
Оригинальный и эстетичный внешний вид, современность конструкции. Стальные радиаторы выглядят очень просто и стильно, они подходят к большинству интерьеров, занимают немного места и совсем не портят вид комнаты.
Невысокая цена , большой выбор моделей и производителей на рынке. Ассортимент стальных радиаторов может удовлетворить потребности любого покупателя, а простота конструкции помогает сохранить невысокую цену на изделие.
Низкая тепловая инертность и хорошая тепловая отдача. Малый объем теплоносителя помогает потреблять меньше энергии, при этом хорошо прогревая воздух, а доля теплового потока, которая передается конвекцией достигает 75%, что позволяет отнести данный тип радиаторов к конвекторам.
Разрешены в использовании в жилых многоквартирных домах, больницах и даже дошкольных заведениях. Самым главным достоинством данных радиаторов выступает их экологичность и безопасность.
Простота монтажа и демонтажа.
Недостатки:
Низкая устойчивость к гидро- и пневмоударам. Низкое рабочее давление и чувствительность к ударам, в т.ч. и гидравлическим, приводит к сокращению срока службы данного типа радиаторов.
Низкая коррозийная стойкость . При сливе воды из системы, соприкосновение атмосферы со стенками радиатора может вызвать появление коррозии.