Нижнее или боковое подключение радиаторов, что лучше. Радиаторы с нижним и боковым подключением: отличия
- Нижнее или боковое подключение радиаторов, что лучше. Радиаторы с нижним и боковым подключением: отличия
- Нижнее подключение радиатора из стены. Что такое узел с нижней подводкой?
- Диагональное подключение радиаторов подача снизу. О способах подключения батарей
- Узел нижнего подключения для радиатора с боковым подключением. Что еще нужно знать
- Боковое подключение радиатора из стены. Схемы и способы подключения радиаторов
- Нижнее подключение радиатора полипропиленом. Монтаж отопительной системы своими руками
Нижнее или боковое подключение радиаторов, что лучше. Радиаторы с нижним и боковым подключением: отличия

Существуют два распространённых способа подключения радиаторов отопления к трубе: боковое и нижнее. Первое предполагает подвод к 4 точкам, а второе – только к двум (в нижней части изделия). В чём состоят их прочие отличия?
Батареи с боковым подключением
В этом варианте подводящая труба подключается к верхнему патрубку, а отвод – к нижнему. Обе эти трубы будут располагаться с одной стороны отопительного прибора. Это самый популярный метод, обеспечивающий отличный прогрев батареи и высокую теплоотдачу, но только при условии, что в ней не слишком большое число секций. Иначе крайние из них с противоположной от труб стороны будут плохо прогреваться. Этот вопрос можно решить применением удлинителя протока воды.
Потребители чаще приобретают радиаторы с боковым подключением ввиду их относительной дешевизны. Их можно ставить в системы как с принудительной, так и с естественной циркуляцией теплоносителя.
Радиаторы с нижним подключением
Батареи с нижним подключением стоят несколько дороже вышеописанных, но значительно органичнее вписываются в оформление помещения благодаря незаметности ведущих к ним коммуникаций (те прячутся в стену или пол). Не имеют ограничений в разводке системы отопления (годятся для однотрубной и двухтрубной), уже оснащены термостатом, легко регулируются с помощью трёхходового крана. Применимы для систем с принудительной циркуляцией.
В нашем каталоге Вы сможете выбрать любые из перечисленных видов изделий, а опытные мастера смонтируют их у Вас дома или в офисе.
Нижнее подключение радиатора из стены. Что такое узел с нижней подводкой?
Узел подключения радиатора с нижней подводкой («бинокль») представляет собой н-образную сантехническую арматуру с двумя параллельно размещенными фитингами в местах подсоединения батареи, и крепкой перемычкой между ними. С одной стороны у данного элемента находится фитинг с запрессованной накидной гайкой и прокладкой с внутренним сечением ¾ дюйма, а с другой стороны на фитинг насечена ¾ дюймовая наружная резьба.
Внутри каждого ввода установлен винтовой вентиль либо шаровый кран, которые предназначены для регулировки или перекрытия тока поступающего теплоносителя, во время снятия радиаторов для их последующего ремонта или замены используются запорные свойства.
Отопительное оборудование нижнего подключения радиатора делает возможным подсоединение алюминиевых или стальных батарей с отводами труб внизу, на которых имеется наружная резьба. К этим трубкам в полу или стене с помощью углового или прямого н-образного переходника «американка» подключаются радиаторы.
Эффективность подключения к отопительным системам снизу в том случае когда подводящие трубы проходят под полом, в редких случаях для сохранения эстетичности интерьера , а также для удобства они заводятся в стены на небольшой высоте – благодаря угловым фитинга, трубы можно подключить к корпусу батарей отопления.
Кроме регулирующих и запирающих вентилей, ради увеличения эффективности функционирования в арматурные подключающие узлы часто внедряют наружные и внутренние байпасы, для стабилизации температурного режима применяются терморегуляторы.
Что такое байпас в системе водоснабжения и отопления? Данная деталь является обыкновенной перемычкой, благодаря которой теплоноситель может свободно двигаться по магистрали, обходя какое-либо оборудование.
Диагональное подключение радиаторов подача снизу. О способах подключения батарей
Начнем с того, что схема подключения бывает:
- односторонней;
- перекрестной;
- нижней.

Схемы подключения радиаторов отопления
По одностороннему варианту подключение производится, как правило, в городских квартирах, где используется центральное отопление. Здесь трубы подсоединяются лишь с одной стороны батареи. Преимущество схемы в том, что система может работать с максимальной номинальной мощностью, однако то, насколько эффективна теплоотдача, зависит от кол-ва секций батареи. Вода в данном случае не может доходить до удаленных от места подсоединения участков, что негативно влияет на эффективности всей отопительной системы. Данный эффект особенно заметен при использовании батареи, состоящей из 15-ти секций, потому при подключении многосекционных радиаторов предпочтение лучше отдавать другой схеме.

Адаптер для нижнего одностороннего подключения радиатора
В последние годы все большую популярность обретают биметаллические радиаторы, их можно подключать по диагональной (ее также называют перекрестной) схеме. Суть данной схемы в том, что подводка подсоединяется сверху, а отводка – снизу, но с другой стороны. При таком монтаже жидкость более равномерно распределяется по батарее, а значит, минимизируются потери ее мощности.

Диагональное подключение радиаторов отопления
На заметку! При использовании диагональной схемы необходимо учитывать то, как располагаются отводящая/подводящая трубы. Ведь если подвод сделать снизу, а отвод – сверху, то радиатор может потерять свыше 50% своей мощности.

Диагональная схема подключения радиаторов отопления при двухтрубной и однотрубной системе
Порой описанные выше схемы по тем или иными причинам не используются в помещении. Тогда остается только нижнее подключение , при котором образуется сквозной проход теплоносителя; очевидно, что до верхних секций радиатора жидкость в таком случае не доходит, из-за чего теплоотдача может снизиться на 15%. Тем не менее, данную схему нередко применяют в частных домах с индивидуальным отоплением. А теплоотдачу можно восполнить посредством распределительных трубок.

Узел нижнего подключения для радиатора с боковым подключением. Что еще нужно знать
Боковые присоединительные отверстия (называют еще входы, патрубки и коллекторы) могут иметь разный диаметр. Чаще всего встречаются:
- G1” – один дюйм (2,54 см);
- G3/4” — три четверти дюйма (1,91 см);
- G1/2” – пол дюйма (1,27 см).
Это важно знать при выборе запорной и регулирующей арматуры: нужно знать, можно ли будет подключить устройство к радиатору напрямую или потребуются переходники. При подключении секционных радиаторов любого типа без переходников (футорок) не обойтись: тут в одни коллекторах резьба левая, а в других — правая
Потому для секционных радиаторов с боковым подключением выпускают специальные монтажные комплекты. Они есть для разных диаметров коллекторов и подводящих труб. Их комплектация бывает разной, но чаще всего там есть семь элементов: четыре футорки-перходника, кран «Маевского» (воздухоотводчик) с ключом и заглушка (на неиспользуемый коллектор)
При подключении секционных радиаторов любого типа без переходников (футорок) не обойтись: тут в одни коллекторах резьба левая, а в других — правая. Потому для секционных радиаторов с боковым подключением выпускают специальные монтажные комплекты. Они есть для разных диаметров коллекторов и подводящих труб. Их комплектация бывает разной, но чаще всего там есть семь элементов: четыре футорки-перходника, кран «Маевского» (воздухоотводчик) с ключом и заглушка (на неиспользуемый коллектор).
https://youtube.com/watch?v=nnQz2VA7C_M
При нижнем подключении все что нужно – это узел подключения радиатора, который еще называют «мультифлекс». Внутрь его встроены два запорных шаровых крана, которые служат для отсечения теплоносителя. При необходимости просто поворачиваете миниатюрные краны и радиатор оказывается отключенным: его можно снимать.
Он может быть:
- прямой – трубы подводятся снизу;
- угловой – трубы выходят из стены.
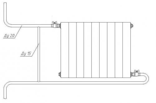
Боковое подключение радиатора из стены. Схемы и способы подключения радиаторов
Существует два типа подключения радиаторов: боковое и нижнее.
Стандартное исполнение большинства отопительных приборов – боковое подключение: справа и слева есть по два присоединительных отверстия. Два из них занимаются при подключении к трубопроводу, в один (вверху, напротив подающего трубопровода) вкручивается воздухоотводчик, а четвертый обычно остается свободным и его закрывают заглушкой.

Схема сборки и подсоединения радиатора с боковым подключением (Тут использованы металлопластиковые трубы, но принцип и для других труб останется тот же, уйдут или изменятся только фитинги)
Радиаторы с нижним подключением, как правило, делают по заказу. При этом типе подключения два патрубка расположенных друг от друга на небольшом расстоянии (50-80 мм). Находятся они внизу. Есть три варианта размещения: справа, слева или по центру отопительного прибора. При заказе требуется уточнять, в каком месте должны они должны располагаться. Есть одна особенность таких моделей: они обязательно оснащены термостатом.
Нижнее подключение популярно при скрытой разводке отопления, когда трубы замурованы в стену или пол. При подсоединении к патрубкам подключается специальный узел, который называют еще «мультифоекс» (на фото он виден).

Нижнее подключение в двухтрубной системе
От входного патрубка подачи к терморегулятору идет внутри трубка. По ней теплоноситель поднимается вверх, заходит на термостат, а оттуда расходится по коллекторам отопительного прибора. Потому при подключении важно не перепутать вход подачи и обратного трубопровода: мало того, что работать так ничего не будет, можно еще и узел входа повредить. Куда нужно подключать подачу указано в паспорте, который должен быть в каждой упаковке (со штампом продающей организации для сохранения гарантий).
При грамотно выполненной подводке труб нижнего подключения радиатора их практически не видно. Хотя для скрытого отопления сегодня есть другое решение – теплый плинтус.
Схемы бокового подключения радиаторов
Вообще схем шесть, но наиболее распространены три: они имеют более высокую эффективность. В многоэтажных домах с вертикальной схемой подачи теплоносителя почти всегда батареи подключены сбоку. Такой тип подсоединения называется «односторонне боковое подключение». Он эффективно работает с небольшими по размеру отопительными приборами: до 8-10 секций или 1,0-1,2 метра (для панельных радиаторов). При таком способе тепловая мощность будет близка к паспортной – потери могут составлять 5-7%.

При горизонтальной разводке более популярно нижнее седельное подключение: это когда трубопроводы подключаются в нижние коллекторы (присоединительные отверстия). Тут по эффективности картина практически такая-же: нормально прогреваются небольшие радиаторы, падение теплоотдачи на уровне 5-7%.
При больших размерах отопительных приборов рекомендовано диагональное подключение: подача сверху с одной стороны, обратка – снизу, с другого бока. Это самая эффективная схема, которую используют производители при тестировании оборудования на заводах. И в паспортах указана именно она.
Нижнее подключение радиатора полипропиленом. Монтаж отопительной системы своими руками
Перед тем, как варить отопление в частном доме, нужно запастись следующими инструментами для пайки полипропиленовых труб:
- Шейвер, позволяющий удалить армирование из участка пайки и снять фаску на трубе;
- Труборез;
- Паяльник для полипропиленовых труб с набором насадок необходимого диаметра.
Технология соединения труб выглядит следующим образом:
- Сначала нужно надеть шейвер на трубу и несколько раз провернуть, чтобы убрать слой алюминия. Если этого не сделать, металл при контакте с жидкостью постепенно будет повреждаться, тем самым оказывая негативное влияние на всю отопительную систему.
- Насадка паяльника разогревается до нужной температуры, после в раструб вставляется труба, а на противоположную сторону насадки надевается фитинг.
- Когда детали немного оплавятся, их нужно совместить с некоторым усилием и задержать в таком положении на несколько секунд. После застывания пластика можно приступать к пайке следующего участка.

Возле выходного патрубка котла устанавливается группа безопасности. Место установки обуславливается тем, что именно на этом отрезке системы поднимается давление при нарушении функционирования системы. Расширительный бачок можно монтировать где угодно, но есть один нюанс: при установке бачка перед насосом расстояние между ними должно составлять больше двух диаметров розлива, а если бачок крепится за насосом, то расстояние увеличивается до десяти диаметров розлива. Несоблюдение этого правила приводит к преждевременному выходу мембраны из строя – а определить неполадку сразу вряд ли удастся, поэтому придется думать еще и о том, как проверить отопление в частном доме.
Иногда возникает вопрос о том, можно ли гравитационную систему переделать в отопление с принудительной циркуляцией. Ответ на данный вопрос утвердительный – при необходимости насос устанавливается в любой контур, что позволяет полностью переделать отопление в частном доме.
- Диаметры и конфигурация разводки выбираются таким образом, чтобы система могла работать с естественной циркуляцией;
- Параллельно разводке перед котлом врезается две подводки, к которым подключается циркуляционный насос;
- Врезки разделяются между собой обратный шаровым клапаном.
Когда насос работает, клапан замыкается и полностью закрывает проход в байпасе, за счет чего обеспечивается принудительная циркуляция теплоносителя. При отключении насоса отопление автоматически переключается на естественную циркуляцию – клапан открывается, теплоноситель продолжает движение. Конечно, обратный клапан можно заменить вентилем или шаровым краном – но в таком случае переключать режим работы системы придется вручную.