Боковое подключение панельных радиаторов. Панельные радиаторы отопления (фото): рейтинг самых популярных стальных моделей радиаторов с нижним и боковым подключением
- Боковое подключение панельных радиаторов. Панельные радиаторы отопления (фото): рейтинг самых популярных стальных моделей радиаторов с нижним и боковым подключением
- Нижнее подключение радиатора из стены. Особенности монтажа
- Узел нижнего подключения для радиатора с боковым подключением. О способах подключения батарей
- Подключение стального радиатора с боковым подключением. Схемы подключения радиаторов
Боковое подключение панельных радиаторов. Панельные радиаторы отопления (фото): рейтинг самых популярных стальных моделей радиаторов с нижним и боковым подключением
Не секрет, что в России суровая зима и бывает холодная весна либо осень. Потому население серьёзно относится к качеству отопления помещения. Для этого используются различные автономные системы в офисах, торговых центрах, жилом секторе.

Чтобы разобраться во всех типах панельных радиаторов отопления, потребуется много времени. Но мы постараемся максимально лаконично рассмотреть этот вопрос, чтобы предложить исчерпывающую информацию для потребителя касательного стального типа.

Особенности панельных радиаторов
Стальные панельные радиаторы отопления базируются на современных технологиях и эксплуатируются в различных условиях. Чтобы увеличить эффективность уровня КПД отдачи тепла и расширения охвата отапливаемой территории внутри устройства устанавливаются стальные рёбра. Они отличаются П-образной формой.

Эта хитрость увеличивает КПД отдачи тепла до 50% дополнительной мощности. Эти модели отличаются отсутствием стандартных секций. Вместо этого на лицевой стороне размещается монолитная панель сформированная двумя листами из стали с толщиной, около, 1,25 мм.

Но на рынке можно встретить модификации изготовленные из оцинкованной стали, чем они отличаются?

- В них применяются тонкие пластины, благодаря металлу с уменьшённой толщиной — 0,04 — 0,5 мм.
- Наружная часть таких моделей грунтуется и окрашивается порошковым методом.
- Стандартным считается белый цвет, но встречаются разные версии, как правило, они изготавливаются под заказ в целях гармоничного вписывания в интерьер.

Данные версии базируются на 2 — 3 панелях с добавлением декорации сбоку и решётки на верхней части. Это позволяет эксплуатировать готовый элемент интерьера с необходимой функциональностью.

Преимущества панельного радиатора
Главное преимущество кроется в доступной цене на панельные радиаторы отопления, поскольку на рынке представлены разные модели и множество стран производителей.
Основные преимущества:
- Можно подобрать дизайн для гармонии со стилевым направлением помещения. Некоторые производители умышлено унифицируют продукцию с конкретным стилем: модерном, классикой;
- Предлагается комфортная регулировка. Уровень нагрева просто контролировать, благодаря упрощённым механическим либо электронным датчикам;
- Практически все модели обеспечивают отличный уровень теплоотдачи. Это достигается особой структурой устройства и принципом конвекции направленным на увеличение КПД отдачи тепла;
- В сравнении с аналогами гарантируется доступная стоимость, поскольку металлические модели создаются, благодаря дешёвой и надёжной стали;
- Помогают экономить энергию. Прибор данного типа отличается уменьшенной ёмкостью потому для нагрева и начала процесса отдачи тепла требуется сравнительно небольшие затраты электричества;
- Отличается многофункциональностью. Любое изделие данного типа можно эксплуатировать в виде радиатора и конвектора;
- Выделяется уменьшенной массой. Вес конструкции незначительный. Потому монтаж легко выполняется самим владельцем.
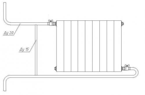
Нижнее подключение радиатора из стены. Особенности монтажа
Нижнее подключение радиатора с боковым отводом
Существует три метода нижнего подключения:
- использование обычных батарей с нижними отверстиями;
- применение специальных радиаторов с характерной конструкцией;
- посредством набора комплектующих в нижней части выбранной модели.
Провести монтаж можно разными способами.
С боковыми отводами
Трубы размещаются снизу внутри полового покрытия или над полом. Радиатор крепиться на стене и к нему проводится трубопровод. Для облегчения процесса демонтажа с каждой стороны устанавливается запорная арматура.
С переходником
Если нет возможности подвести трубопровод к батарее с обеих сторон, используется переходник, который вставляется в отверстие снизу, а сверху проводится трубка с антикоррозийными свойствами.
С удлинителем потока
Удлинитель потока для радиатора
Этот тип монтажа не совместим с самотечными системами. Удлинитель потока монтируется в нижнее отверстие отопительного изделия. При этом не предусмотрено никаких отводов к верхней части модели.
Самым оптимальным нижним подключением является установка снизу, для этого приобретается специализированный радиатор, который уже обеспечен терморегулятором, двумя патрубками с нужным направлением и возможностью внедрения переходника направления потока.
При любом способе подключения батарея должна быть расположена в 10 см от пола, подоконника и в 5 см от стены. В зависимости от схемы трубопровод укладывается под пол, в стене, между половым покрытием и радиатором. Выбранный метод монтажа не влияет на эффективность работы отопления.
Узел нижнего подключения для радиатора с боковым подключением. О способах подключения батарей
Начнем с того, что схема подключения бывает:
- односторонней;
- перекрестной;
- нижней.

Схемы подключения радиаторов отопления
По одностороннему варианту подключение производится, как правило, в городских квартирах, где используется центральное отопление. Здесь трубы подсоединяются лишь с одной стороны батареи. Преимущество схемы в том, что система может работать с максимальной номинальной мощностью, однако то, насколько эффективна теплоотдача, зависит от кол-ва секций батареи. Вода в данном случае не может доходить до удаленных от места подсоединения участков, что негативно влияет на эффективности всей отопительной системы. Данный эффект особенно заметен при использовании батареи, состоящей из 15-ти секций, потому при подключении многосекционных радиаторов предпочтение лучше отдавать другой схеме.

Адаптер для нижнего одностороннего подключения радиатора
В последние годы все большую популярность обретают биметаллические радиаторы, их можно подключать по диагональной (ее также называют перекрестной) схеме. Суть данной схемы в том, что подводка подсоединяется сверху, а отводка – снизу, но с другой стороны. При таком монтаже жидкость более равномерно распределяется по батарее, а значит, минимизируются потери ее мощности.

Диагональное подключение радиаторов отопления
На заметку! При использовании диагональной схемы необходимо учитывать то, как располагаются отводящая/подводящая трубы. Ведь если подвод сделать снизу, а отвод – сверху, то радиатор может потерять свыше 50% своей мощности.

Диагональная схема подключения радиаторов отопления при двухтрубной и однотрубной системе
Порой описанные выше схемы по тем или иными причинам не используются в помещении. Тогда остается только нижнее подключение , при котором образуется сквозной проход теплоносителя; очевидно, что до верхних секций радиатора жидкость в таком случае не доходит, из-за чего теплоотдача может снизиться на 15%. Тем не менее, данную схему нередко применяют в частных домах с индивидуальным отоплением. А теплоотдачу можно восполнить посредством распределительных трубок.

Подключение стального радиатора с боковым подключением. Схемы подключения радиаторов
Каждый стандартный радиатор имеет по 4 патрубка для подсоединения к трубопроводу, исключение составляют лишь стальные модели с двумя нижними отводами — это дает возможность встраивать их в любую схему разводки, удобную для потребителя с точки зрения финансовых расходов и конструктивного исполнения. Помимо диагонального, используются и другие методы присоединения радиаторных обменников к трубопроводам.
Нижнее
Подключаться к системе отопления в нижней точке могут металлические радиаторы, имеющие для этого специальный узел внизу (бинокль) и соответствующую внутреннюю конструкцию. Иногда такой метод включения используют и в алюминиевых секционных батареях, но при этом воду дополнительно подводят к верхнему патрубку с помощью байпасной перемычки. В обоих рассмотренных случаях при подсоединении системы отопления обогревательные приборы подключаются снизу с одной стороны, поэтому подобный монтаж называют нижним односторонним.
Также снизу производят популярное соединение радиаторов в однотрубной системе — ленинградку, реализуемое путем присоединения к основной трубе нижестоящих фитингов теплообменников. Если подключаться к контуру с нижней стороны, эффективность теплопередачи снижается до 88% у ленинградки и еще на 10% при одностороннем размещении подходящих снизу труб.
Главное преимущество нижних узлов — эстетичный внешний вид батарей без нарушающих дизайн трубных отрезков при подводке под половой стяжкой.