Схемы однотрубной системы отопления. Принцип работы водяного отопления
- Схемы однотрубной системы отопления. Принцип работы водяного отопления
- Однотрубная система отопления своими руками. Одноконтурная схема — устройство и принцип действия
- Однотрубная система отопления с насосом. Что такое однотрубная система с нижней разводкой
- Двухтрубная система отопления схема. Особенности двухтрубных систем отопления
- Однотрубная система отопления с нижней разводкой. Однотрубная система отопления частного дома.
- Однотрубная система отопления одноэтажного дома. Ленинградская однотрубная система и ее элементы
- Однотрубная система отопления с верхней разводкой. Разновидности
- Правильная однотрубная система отопления. Планирование
- Однотрубная система отопления частного дома. Основные конструктивные элементы однотрубной системы отопления
Схемы однотрубной системы отопления. Принцип работы водяного отопления
Основой функционирования системы отопления является непрерывная циркуляция среды, выполняющей роль теплоносителя. Во время движения по трубам от источника нагревания (котла) к обогревающим приборам и обратно осуществляется отдача тепловой энергии и обогрев помещений. В качестве теплоносителя может использоваться не только вода, но также воздух, пар или антифриз (в домах нерегулярного проживания). Однако водяные системы отопления получили наибольшее распространение.
При обустройстве традиционного отопления используются физические явления и законы – тепловое расширение воды, конвекция и гравитация. После нагревания посредством котла происходит расширения теплоносителя, из-за чего в трубопроводе возникает давление. Среда при этом теряет в своей плотности и весе. Находящаяся внизу более тяжелая и плотная холодная вода выталкивает нагретые порции вверх: это объясняет исключительно вертикальное позиционирование выходящей из котла подающей трубы.

Благодаря создаваемому давлению и конвекции теплоноситель циркулирует внутри батарей, постепенно отдавая им свое тепло. Этот обмен энергией и приводит к обогреву помещений. Возвращающаяся обратно вода обычно имеет невысокую температуру: после этого цикл начинается заново.
Отопление, функционирующее за счет естественной циркуляции, также носит название самотечного и гравитационного. Стабильную циркуляцию жидкости обеспечивает угол уклона горизонтальных труб системы. Обычно это – 2-3 мм на погонный метр. В результате нагревания теплоносителя в магистрали создается гидравлическое давление. Так как вода способна сжиматься, даже небольшое превышение нормы чревато серьезными последствиями. Чтобы этого не допустить, любой отопительный контур оснащается специальным компенсирующим приспособлением – расширительной емкостью.
Однотрубная система отопления своими руками. Одноконтурная схема — устройство и принцип действия
Как работает отопление с одним контуром трубной разводки:
- Теплогенератор нагревает рабочую жидкость, и направляет ее в трубопровод системы отопления;
- По трубам теплоноситель подается в батареи, регистры или радиаторы;
- Рабочая жидкость протекает по радиаторам последовательно из первого во второй, из второго в третий, и т.д., пока из последнего радиатора снова не попадет в котел;
- После подогрева остывшей жидкости в котле теплоноситель снова направляется в систему отопления.
Устроенная по такой схеме однотрубная система отопления практически вечная, если переток воды по трубам организован по принципу гравитации – без насоса.
В системе с естественной циркуляцией теплоносителя для работы системы необходимо только соблюдать некоторый уклон труб, и отопление будет работать в абсолютно автономном режиме.
Если собирается принудительная магистральная система отопления частного дома своими руками, то в нее включается циркуляционный насос.
Обратите внимание
Разница между этими двумя вариантами огромная: в первом случае поток рабочей жидкости будет медленным, нужно тщательно соблюдать все уклоны и повороты, необходимо размещать расширительный резервуар только в самой высокой точке системы, но такая схема работает самостоятельно и не требует электричества, контроля и регулировок. При работе насоса работа отопления упрощается: схема разводки может быть любой, так как насос протолкнет воду по любым лабиринтам, а расширительный бак можно врезать в трубу и закрытого типа, что позволяет устанавливать его в любой точке системы.
Самостоятельный монтаж однотрубной системы отопления с естественной циркуляцией часто реализуется по схеме с верхней трубной разводкой.
Упрощенно такая схема подключения однотрубной системы отопления частного дома выглядит, как последовательное включение оборудования, начиная от котла и заканчивая крайним в разводке радиатором, причем все приборы должны располагаться один ниже другого, чтобы вода имела физическую возможность создавать направленный поток. Преимущество в таком плане однотрубного отопления – отсутствие зависимости от электричества, бесшумность и, как следствие, надежность.
Принудительная однотрубная разводка требует включения насоса в трубу обратной подачи рабочей жидкости – между последним радиатором и котлом. Так как жидкость движется принудительно, никаких уклонов соблюдать не нужно, а за стравливанием воздуха и другими параметрами системы может следить автоматика, которую при подведенном электричестве организовать несложно.
Принудительная закрытая или открытая однотрубная система отопления эффективнее работает с нижней трубной разводкой, когда подающая труба проходит по периметру всех обогревательных приборов по полу. Достоинства такой схемы – возможность скрытой разводки и отсутствие вертикальных трубных стояков.
Однотрубная система отопления с насосом. Что такое однотрубная система с нижней разводкой
Из названия понятно, что все батареи подключены к одной трубе, уложенной снизу по периметру отапливаемых помещений. Батареи к трубе присоединяются последовательно, вход/выход в батареях может быть нижним или диагональным (второй вариант имеет лучшие показатели по эффективности обогрева). Все батареи могут работать только одновременно.
Пример подключения радиаторов
Для расширения возможностей регулировки температуры в каждом помещении используется байпасная система – батареи подключаются параллельно к одной трубе, могут работать по отдельности и одновременно, дополнительно регулируется температура нагрева каждой батареи.
Подключение радиатора отопления
По виду контура однотрубная система бывает открытой и закрытой.
- В открытой есть расширительный бачок для приема увеличенного объема воды и слива излишков. Бачок связан с атмосферой, что и дало системе название открытой.
- Расширительный бак открытого типа
- Открытый расширительный бак
- Открытый расширительный бак способствует повышенной испаряемости жидкости, и, как следствие, необходимо постоянно следить за восполняемостью этой жидкости
- В закрытой системе расширительный бачок закрытого типа, вся система под давлением. Для предотвращения возникновения аварийных ситуаций в закрытом варианте на системе монтируется группа безопасности: манометр, воздухоотводчик и предохранительны
й клапан. - Устройство закрытых расширительных баков
- Расширительный бачок мембранного типа
- Расширительный бак для отопления
Однотрубная система с нижней разводкой может работать только с принудительным движением теплоносителя (с насосом), да и то длина контура ограничивается. Вернее не столько длина контура, сколько количество подключенных батарей и их фактическая теплоотдача.
Однотрубная система отопления частного дома
Эти знания нужны для того, чтобы понимать принцип действия системы и знать, чего с ее помощью можно достичь. Такие знания дают возможность более осознанно делать монтаж, будет ясно, зачем нужна каждая труба и каждый кран. Байпасная система значительно улучшает характеристики однотрубного отопления, но по монтажу сложнее, по количеству составных элементов и стоимости дороже. Кроме того, ее можно монтировать только над напольными покрытиями, в противном случае регулировочные игольчатые краны будут недоступными.
Двухтрубная система отопления схема. Особенности двухтрубных систем отопления
Двухтрубная система отопления представляет собой самую распространенную схему прокладки отопительных труб и подключения радиаторов. Она предусматривает использование двух труб – по одной осуществляется подача горячего теплоносителя, а по второй он отводится к отопительному котлу. Данная схема отличается высокой эффективностью и обеспечивает равномерное распределение тепла по всем обогреваемым помещениям.
Однотрубные системы отопления, в отличие от двухтрубных, обладают целым рядом недостатков:

Различие в работе однотрубных и двухтрубных систем отопления хорошо иллюстрирует данная картинка.
- Более ограниченная длина контура;
- Неравномерное распределение тепла по обогреваемым помещениям – страдают самые последние комнаты;
- Трудно отапливать многоэтажные здания;
- Повышенное гидродинамическое сопротивление в системе отопления;
- Отсутствие раздельной регулировки температуры обогрева в разных комнатах;
- Трудности в ремонте – нельзя снять неисправную батарею без остановки всей системы.
Некоторая часть вышеупомянутых проблем частично решается с помощью схемы «ленинградка», но и это не является полноценным выходом из ситуации.
Однотрубные системы отопления востребованы там, где двухтрубные схемы являются явным излишеством. Например, они монтируются в небольших домиках на 2 или 3 комнаты – здесь можно немного сэкономить на трубах.
Двухтрубная система отопления предусматривает прокладку двух параллельных труб, к которым подключаются радиаторы. Теплоноситель из подающей трубы поступает в отопительные приборы, после чего отправляется в обратную трубу (обратку). Несмотря на более внушительные финансовые и трудовые затраты, готовая система получается более функциональной в эксплуатации и удобной в ремонте.
Двухтрубное отопление активно используется для обогрева помещений и здания различного назначения. К ним относятся одноэтажные частные дома и коттеджи, многоэтажные многоквартирные дома, а также промышленные и административные постройки. Иными словами, сфера его применения отличается своей широтой.
Однотрубная система отопления с нижней разводкой. Однотрубная система отопления частного дома.
Наиболее оптимальным вариантом для частных домов будет схема с одним центральным трубопроводом отопления.
В нём теплоноситель непрерывно циркулирует по магистрали от котла до отопительных приборов , отдавая тепловую энергию и тем самым нагревая помещения. В качестве источника тепла может выступать воздух, пар, вода, либо антифриз. Наиболее часто используется водяная система отопления.
В большинстве случаях стандартное отопление основано на следующих физических законах: тепловом расширении жидкости за счёт нагрева в котле, конвекционных силах гравитации.
После нагревания теплоносителя происходит его расширение и соответственно возрастает давление в трубе. Становясь более лёгким он направляется вверх и под воздействием давления, гравитации и конвекции, распространяется по трубам в отопительные приборы. Из за этой особенности труба из котла всегда направленна строго вверх.
После передачи тепла радиаторам охлаждённый теплоноситель устремляется обратно в котёл и цикл повторяется.
Исходя из вышесказанного однотрубная система отопления частного дома — это собой замкнутый маршрут течения теплоносителя.

Однотрубная система отопления частного дома с принудительной циркуляцией
Радиаторы здесь подсоединяются последовательно друг за другом. Однотрубные системы отопления бывают двух видов: с принудительной циркуляцией и естественной. Но тем не менее практически все их элементы аналогичны:
- Котёл, который бывает нескольких видов: на твёрдом топливе, электрический, на газе. Служит в качестве источника создания тепла.
- Оборудование, осуществляющее теплоотдачу: радиаторы , тёплый пол .
- Элемент системы, отвечающий за движение теплоносителя. У принудительной схемы — это насос, у естественной схемы — это специальный участок трубы для разгона теплоносителя.
- Оборудование для компенсации переизбытка давления в трубе: расширительный резервуар открытого или закрытого вида. При открытом типе ёмкость бывает целиком открытой, либо частично. Она подсоединяется к трубопроводу в его высочайшей точке сразу же после котла.
- Так же в данной системе предусмотрен отвод для слива лишнего теплоносителя в канализацию или на улицу. В данном случае теплоноситель непосредственно соприкасается с воздухом, за счёт чего происходит его испарение и насыщение кислородом.При закрытом типе резервуара он полностью герметичен. Внутри бак поделён мембраной на два отделения. В одном отделении находится воздух, другое соединено с трубопроводом. Мембрана служит демпфером. При нагреве теплоноситель, воздействует на мембрану, смещая её в сторону отделения с воздухом. В обратном случае мембрана под давлением образовавшегося сжатого воздуха выдавливает излишек жидкости снова в основной трубопровод.
- Трубы и различная арматура.
Однотрубная система отопления одноэтажного дома. Ленинградская однотрубная система и ее элементы
Паровое отопление позволяет равномерно разнести тепло по всей площади дома и убрать его источник за пределы жилых помещений. Если квартиры или дома имеют несколько изолированных комнат, то такая схема – классическое техническое решение для организации отопления. В состав однотрубной системы входят:
- Котел, расчет мощности которого зависит от отапливаемой площади;
- Замкнутая магистраль с циркуляцией теплоносителя от котла к теплообменникам;
- Радиаторы отопления с последовательным типом подключения;
- Расширительный бак, который для одноэтажного здания может быть открытым. Расчет объема бака зависит от количества теплоносителя в системе.
Циркуляция теплоносителя происходит естественным путем либо принудительно. Для отопления многоэтажного дома, система которого имеет большое гидродинамическое сопротивление, пользуются принудительной циркуляцией.
Перед началом подключения отопления нужно провести гидравлический расчет с учетом теплопотерь дома, особенностей системы и разводки (горизонтальная или вертикальная, с принудительной циркуляцией или нет, верхним или нижним розливом).
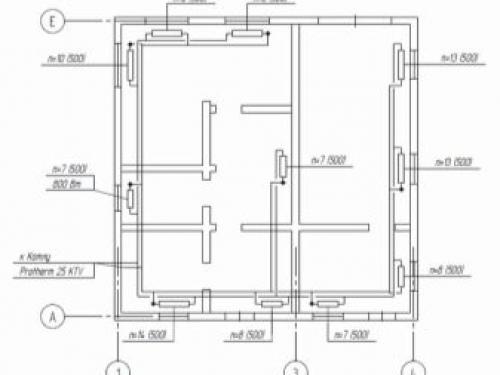
Однотрубная система отопления с нижней разводкой использует только одну трубу, одновременно играющую роль подающей и сборной магистрали. Радиаторы подключаются к ней посредством патрубков меньшего диаметра, но не параллельно друг другу, как в той, которая имеет верхнюю подающую магистраль, а последовательно. Её схема представлена на рисунке ниже. В остальном «ленинградка», так еще иногда называют это техническое решение, не отличается от классической двухтрубной системы, в которой теплоноситель в радиаторы подается розливом с верхней магистрали.
Однотрубная система отопления с верхней разводкой. Разновидности
Однотрубное отопление может конструироваться по нескольким различным схемам. Выбор конкретной зависит от ваших личных предпочтений, а также особенностей возводимого объекта.
Тем не менее, любая схема однотрубной системы отопления имеет такие особенности:
- в этой инженерной сети отсутствует разделение на подающие теплоноситель трубопроводы и отводящие остывшую воду от радиаторов ;
- все приборы соединены в общую систему последовательно, а теплоноситель, проходя по системе, описывает кольцо;
- закрытая однотрубная система отопления (с замкнутым кругом циркуляции горячей воды) может комбинироваться с двухтрубной — в этом случае подача воды на этажи и ее удаление происходит по двум каналам, а разводка – по одному.
Инженерами-строителями выделяются четыре разновидности однотрубных схем, которые отличаются между собой способом монтажа трубопровода, соединяющего котел с радиаторами.
- Однотрубная схема отопления с нижним расположением труб . В этом случае теплоноситель протекает по трубам, расположенным горизонтально и проложенным вдоль пола (или под ним), после чего поднимается к установленным панелям отопления. Достоинства этой системы состоят в легкой регулировке температуры и возможности перекрывать отдельные элементы инженерной сети в случае аварий или для профилактического ремонта.
Система с нижним расположением труб
- Однотрубная система отопления с верхней разводкой . Здесь теплоноситель, выходя из отопителя, сразу поднимается к самой верхней точке сети, после чего с помощью труб, уложенных горизонтально, распределяется по панелям отопления.
На фото — однотрубная система с верхним расположением труб
- Однотрубная вертикальная система отопления . Ее особенность состоит в том, что в комнатах отсутствуют горизонтально уложенные трубы. Здесь теплоноситель, попадая в верхнюю точку, стекает вертикально вниз, проходя по пути через установленные в комнатах радиаторы.

Однотрубная вертикальная система отопления
- Однотрубная горизонтальная система отопления принципиально похожа на предыдущую, но здесь трубы располагаются горизонтально . Часто такая схема используется в одноэтажных домах.
Однотрубная система обогрева с горизонтальным расположением труб и байпасами
Кроме описанных выше разновидностей, однотрубная схема системы отопления бывает:
- с естественной циркуляцией теплоносителя;
- с принудительной организацией тока воды.
В первом случае перетекание жидкости обеспечивается за счет разности температур и, соответственно, плотности. Напор остывшей воды, вытекающей из радиаторов, вытесняет менее плотный и горячий теплоноситель в более высокие точки трубопровода, откуда он и разливается далее.
Чтобы такая сеть функционировала нормально, необходимо при установке труб организовать их уклон в сторону котла на 3-4 градуса. А это не всегда возможно в одноэтажных зданиях большой протяженности (более 30 метров).

Насос для принудительной циркуляции воды
Система принудительной циркуляции дополнительно оборудуется насосом, который устанавливается перед входом обратного (холодного) трубопровода в котел. В этом случае уклон можно делать меньшим (от 0,5 до 1 градуса).
Обратите внимание!
Схема с естественной циркуляцией предпочтительнее, так как является более энергонезависимым — ее работа не зависит от наличия либо отсутствия электроэнергии.
Во избежание застоя воды при отключении электричества инженеры советуют устанавливать так называемый разгонный коллектор. Это обычная вертикальная труба, которая поднимает теплоноситель в верхнюю точку системы — на высоту не менее 1,5 метра относительно радиаторов.
Правильная однотрубная система отопления. Планирование
В процессе предварительной подготовки любой отопительной схемы стоит учитывать массу особенностей, которые могут повлиять на ее эффективное функционирование. В двухэтажных и одноэтажных домах однотрубный вариант отопления функционирует, не создавая много шума. Подобную систему можно установить также в многоквартирных домах.
Важным моментом является правильный выбор составных деталей: это котел, радиаторы, трубы, которые будут использоваться при создании контура, расширительный бачок, циркуляционный насос.
Выбирая котел, помните, что основными предъявляемыми к нему требованиями являются поддержка необходимого температурного уровня во всех комнатах 2-этажного частного дома и полное восполнение неизбежных теплопотерь.
Отдельно стоит рассмотреть вопрос, касающийся необходимой мощности устройства. Обычно рекомендуют основываться на соотношении 100Вт*1 м² жилой площади. Но этот вариант не сможет дать точного значения, так как не учитывает разницу климатических характеристик разных регионов, особенности комнат и помещений. Одноконтурные схемы встречаются повсюду в централизованных магистралях многоэтажных построек, так как отопительный стояк и является данной конструкцией, имеющей большую скорость движения теплоносителя.
Более точные показатели сможет дать расчет необходимого количества энергии для каждого отдельного помещения. Далее, сложив все полученные результаты, мы сможем определить минимальные параметры мощности котельной установки.


Однотрубная отопительная конструкция позволяет монтировать любые модели труб.
Обратите внимание на следующие факты:
- Если температура жидкости в трубе будет больше 70°, тогда не используйте полимерную продукцию (больше всего это относится к полипропиленовой арматуре).
- Процедуру обвязки твердотопливного котла лучше осуществлять металлическими образцами.
- Для разводки согласно системе естественной циркуляции и открытого расширительного бака рекомендуется отдать предпочтение стальным трубам открытого расположения.
- Если вы запланировали спрятать арматуру в стенах, то выбирайте нержавейку, полипропилен либо РЕХ.
- Допускается использование металлопластиковых моделей, однако только в комплекте с пресс-фитингами (резьбовые варианты запрещается прятать в стенах либо полу). При любых обстоятельствах, если будут замуровываться трубы, необходимо нанести защитное покрытие, чтобы исключить химическое воздействие цементсодержащих составов. В дополнение нужно учитывать вероятное линейное расширение во время температурных колебаний, и в связи с этим выполнить термоизоляцию, которая не допустит теплопотерь для ненужного прогрева стен либо пола.
Однотрубная система отопления частного дома. Основные конструктивные элементы однотрубной системы отопления
В первую очередь необходимо рассмотреть конструкцию системы, которая, как вы сами убедитесь довольно проста. Основное отличие однотрубного отопления от двухтрубного заключается в том, что в такой системе полностью отсутствует распределение подающей и обратной трубы.
Полный контур состоит только из одной трубы, которая последовательно соединяет радиаторы. Именно поэтому труба только условно делится пополам, где одна половина, которая выходит из элемента нагрева – падающая, и вторая половина – обратная.

Схема расположения элементов
Для полноценного понимания о том, как устроена эта система необходимо досконально разобраться в её составляющих. Основными элементами такой системы являются:
- Нагревательный бак . В индивидуальных случаях предусматриваются конструкции на твердом топливе, газе или же электричестве.
- Отопительные элементы . В их роли в данной ситуации выступают радиаторы. Принцип их работы очень прост — забирая тепло у теплоносителя, они передают его помещению.
- Расширительный бачок . Его присутствие в системе обязательно. Основная задача — компенсировать расширение теплоносителя, не давая ему повредить трубы.
- Разводка . В частности, она подразумевает наличие в системе кранов, запорной арматуры и труб.
Важно! Следует отметить, что работает система в любом из случаев по одному принципу, и не зависит от нагревательных элементов и топлива.
Преимущества и недостатки отопления с одной трубой
Чтобы определиться с проектированием системы отопления в своем доме необходимо знать все преимущества и недостатки каждой из них. Говоря о варианте с одним контуром следует выделить его следующие достоинства:
- Обустройство такой системы позволяет значительно сэкономить средства, поскольку требует минимального количества материала. Для монтажа не нужно большое количество соединительных труб, перемычек, подводов к радиаторам и обратных стояков и прочих комплектующих.
- Несомненным достоинством является и внешний вид такого отопления, который с эстетической точки зрения получается гораздо более привлекательным чем остальные.
- Возможность прокладки отопительных элементов под покрытием пола, дверными проемами или облицовочным материалом стен.
- В современных моделях можно добиться поддержания температуры теплоносителя. Делается это за счет последовательной системы подключения радиаторов, оснащенных датчиками температуры.
Говоря о современной комплектации, следует заметить наличие: термостатических клапанов, регуляторов температуры, дополнительных воздухоотводчиков, вентилей балансировки, шаровых кранов.
Система «ленинградка» — разновидность однотрубного отопления с параллельным расположением радиаторов, что позволяет уменьшить снижение температуры при прохождении через систему теплоносителя
Если говорить о слабой стороне данного вида отопления, то можно отметить три существенных недостатка:
- Самым большим недостатком, и в то же время основным отличием однотрубной системы отопления от двухтрубной является последовательное соединение радиаторов. К примеру если в одной из комнат слишком высокая, или же наоборот, слишком низкая температура, для исправления проблемы необходимо подкрутить вентиль на радиаторе, что в последствии приведет к изменению температуры теплоносителя в последующих элементах нагревательной системы.
- Еще одним минусом является необходимость в довольно высоком давлении для циркуляции теплоносителя. Чтобы система работала без сбоев придется установить мощный насос, поскольку естественная циркуляция проходит довольно плохо, в отличие от двухтрубной системы, у которой проблем в этом плане нет. Это может привести к дополнительным затратам, поскольку существует риск образования протечек или разрыва.
- И последним довольно значимым недостатком можно назвать то, что в одноэтажном доме необходима установка однотрубной системы с верхней разводкой. В этом случае роль технического помещения будет выполнять чердак, на котором должен располагаться расширительный бак.